Bedrooms: 3
Baths: 3
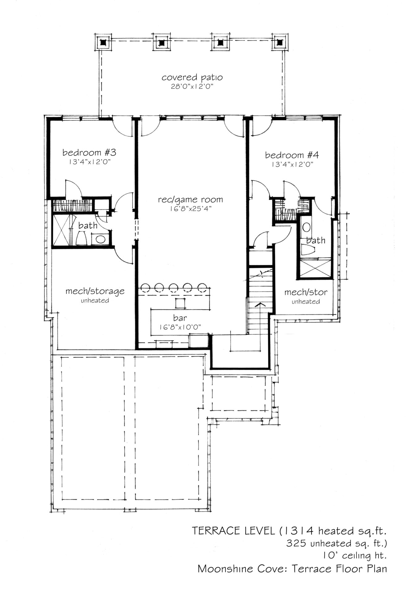
(2 additional bedrooms/baths on Terrace)
Main Floor Sq. Ft.: 1654
Upper Floor Sq. Ft.: 578
Terrace Floor Sq. Ft.: 1314
Width: 45’0″
Depth: 73’0″
10 ft. Main Floor Ceiling Height; 9 ft. Upper Floor Ceiling Height
Plans are available in downloadable format only. Once you download the PDF’s they can be shared or printed at your convenience. These PDF’s can be printed on 24″x36″ sheets at any large-format printing company in your local area. Stock plans do not include HVAC layouts or material list.










